Mini Market & Μικρή Λιανική Νο 6 - page 53

53
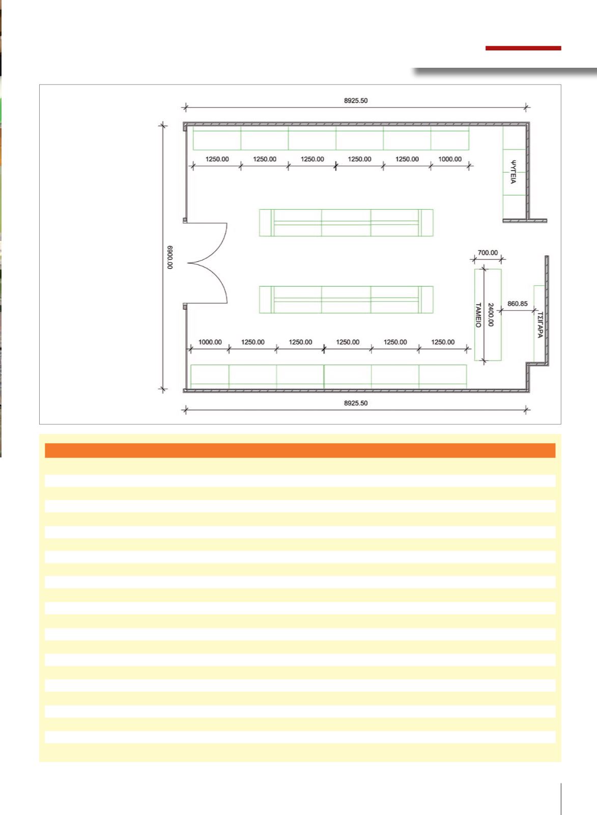
Ο κ. Θωμάς Σαββόπουλος
της εταιρείας
ΣΑΒΒΟΠΟΥΛΟΣ Shop
Fitting, ειδικά για το
περιοδικό μας, έφτιαξε
ένα προσχέδιο-μία
κάτοψη ως παράδειγμα
σε ένα υποθετικό
κατάστημα 50τ.μ.
(Διαστασιολόγηση σε
χιλιοστά)
Ενδεικτική
προσφορά
εταιρείες ΕΞΟΠΛΙΣΜΟΥ ΚΑΤΑΣΤΗΜΑΤΩΝ
ΕΠΩΝΥΜΙΑ
ΠΟΛΗ
ΤΗΛΕΦΩΝΟ
E-MAIL/WEB
ALFA FROST AE
ΒΙΠΕ ΑΣΠΡΟΠΥΡΓΟΥ 210 5575430
ARCADIA SYSTEMS
ΤΡΙΠΟΛΗ
2710 227343
ARCON HELLAS
ΘΕΣΣΑΛΟΝΙΚΗ 2310 723240
GELATO MIO
ΑΜΥΝΤΑΙΟ
23860 23483
GEMISTOS SHOP DESIGN
ΠΕΙΡΑΙΑΣ
210 4115571
HERMES – ΔΕΝΕΔΙΟΣ ΘΕΟΔΩΡΟΣ
ΑΓ. ΔΗΜΗΤΡΙΟΣ
210 9750721
STAND LINE
ΘΕΣΣΑΛΟΝΙΚΗ 23920 73221
ΑΓΓΕΛΟΠΟΥΛΟΣ Δ ΕΠΕ
ΑΘΗΝΑ
210 9581537
ΑΦΟΙ ΠΕΤΡΟΓΙΑΝΝΗ ΟΕ PEBRO
ΑΣΠΡΟΠΥΡΓΟΣ
210 5595360
ΒΟΓΙΑΤΖΟΓΛΟΥ SYSTEMS AE
ΜΕΤΑΜΟΡΦΩΣΗ 210 2888645
Δ. ΤΡΙΑΝΤΑΦΥΛΛΟΣ & ΣΙΑ ΟΕ
ΑΡΓΟΣ
27510 67198
Θ. ΔΗΜΗΤΡΟΥΛΑΚΟΣ ΑΒΕΕ
ΑΘΗΝΑ
 210 3470649
ΚΟNDEX.GR
ΑΘΗΝΑ
2103813225
ΜΠΕΚΙΑΡΗΣ ΟΕ – ΑΦΟΙ ΝΙΚ. & ΣΤΑΜ.
ΠΕΡΙΣΤΕΡΙ
210 5770300
ΝΙΚΟΛΑΚΑΚΗΣ
ΧΑΝΙΑ
28210 93126
ΝΙΚΟΛΑΟΥ STANDS
ΑΧΑΡΝΑΙ
210 2317035
ΠΑΤΑΚΑΣ
ΞΑΝΘΗ
25410 73587
ΠΟΡΤΟΚΑΛΑΚΗΣ ΡΑΦΙΑ
ΠΑΙΑΝΙΑ ΑΤΤΙΚΗΣ 210 6659696
ΣΑΒΒΟΠΟΥΛΟΣ SHOP FITTING
ΘΕΡΜΗ
2310 462597
ΤΕΧΝΟΣΩΛ ΕΠΕ
ΜΕΤΑΜΟΡΦΩΣΗ 2102845177
ΤΖΑΡΤΖΗΣ ΕΞΟΠΛΙΣΜΟΙ ΚΑΤΑΣΤΗΜΑΤΩΝ ΑΒΕΕ ΘΕΣΣΑΛΟΝΙΚΗ 2310 749666
ΤΡΕΚΛΗΣ
ΠΑΙΑΝΙΑ
210 6646646
ΕΞΟΠΛΙΣΜΟΣ & ΣΧΕΔΙΑΣΜΟΣ
Αφιέρωμα
1...,43,44,45,46,47,48,49,50,51,52 54,55,56,57,58,59,60,61,62,63,...84
Powered by FlippingBook